| 名稱: | 二位二通塑料50毫米缸徑常閉有水錘氣控流體閥 |
| 型號: | RJQ22-P50-25S |
| 類別: | 氣控流體閥 |
| 品牌: | 星宇電子 |
| 產地: | 寧波奉化 |
| 價格: | 面議 |
產品簡介
二位二通塑料常閉有水錘斜角閥,流量大,壽命長,性能可靠。
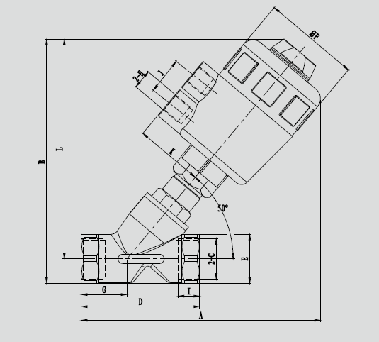
結構尺寸

技術參數
型號 | 流量通徑DN(mm) | 執行器規格 | A | B | C | D | E | F | G | H | I | J | K | L |
RJQ22(S)40-10 | 13 | 40 | 138 | 147 | G3/8” | 69 | 27 | 53 | 25 | G1/4 | 12 | 20.5 | 33 | 133.5 |
RJQ22(S)50-10 | 13 | 50 | 148 | 157 | G3/8” | 69 | 27 | 63.3 | 25 | G1/4 | 12 | 24 | 44.5 | 143.5 |
RJQ22(S)50-15 | 13 | 50 | 148 | 157 | G1/2” | 69 | 27 | 63.3 | 23.1 | G1/4 | 12 | 24 | 44.5 | 143.5 |
RJQ22(S)50-20 | 18 | 50 | 151 | 161.5 | G3/4” | 75.5 | 32 | 63.3 | 25 | G1/4 | 14 | 24 | 44.5 | 145.5 |
RJQ22(S)50-25 | 22 | 50 | 172 | 183.5 | G1” | 90.5 | 39 | 63.3 | 30.3 | G1/4 | 14.5 | 24 | 44.5 | 164 |
RJQ22(S)63-25 | 22 | 63 | 213.5 | 209 | G1” | 90.5 | 39 | 79.5 | 30.3 | G1/4 | 14.5 | 24 | 51.8 | 189.5 |
RJQ22(S)63-32 | 31 | 63 | 213.5 | 227 | G1-G1/4” | 117.5 | 50 | 79.5 | 37.7 | G1/4 | 20 | 24 | 51.8 | 199.5 |
RJQ22(S)63-40 | 35 | 63 | 231.5 | 227 | G1-G1/2” | 117.5 | 55 | 79.5 | 37.7 | G1/4 | 18.5 | 24 | 51.8 | 199.5 |
RJQ22(S)80-40 | 35 | 63 | 229 | 243.5 | G1-G1/2” | 117.5 | 55 | 100 | 37.7 | G1/4 | 18.5 | 24 | 59 | 216 |
RJQ22(S)63-50 | 45 | 63 | 237.5 | 251 | G2” | 137.5 | 70 | 79.5 | 48 | G1/4 | 22 | 24 | 51.8 | 216 |
RJQ22(S)80-50 | 45 | 80 | 256 | 270.5 | G2” | 137.5 | 70 | 100 | 48 | G1/4 | 22 | 24 | 59 | 235.5 |
廠房設備
自動化設備與檢測設備
生產車間
行業應用
榮譽證書
主要客戶
銷售網絡
公司簡介
客戶服務
聯系我們

二位二通不銹鋼63毫米缸徑常閉有水錘氣控流體閥
型號:RJQ22-S63-40S
22通徑二位二通壓縮空氣普通型直角氣控流體閥
型號:RQ22HD-25
35通徑二位二通壓縮空氣普通型直角氣控流體閥
型號:RQ22HD-40
二位二通不銹鋼40毫米缸徑雙作用氣控流體閥
型號:RJQ22-S40-10D 地址:浙江省寧波市奉化區江口街道方橋工業園區恒豐路2號
傳真:0574-88846999
電話:0574-88846983 0574-89017255 0574-88848607
郵箱:webmaster@xyelectron.com