直線電機模組
型號:XBM150
類別:直線電機模組
品牌:星宇XINGYU
產地:寧波奉化
產品簡介
星宇推出125mm至235mm的標準鋁型材直線電機模組產品,覆蓋民用工業自動化絕大部分對于運動的需求。實現0-200kg的帶載能力,穩定運行在高速、高加減速、高精度的性能基礎上。此外,還特有80mm窄幅經濟型直線電機模組,可實現對絲桿傳動模組的完全替代。
產品特點
○ 重復精度:±5um
○ 絕對精度:<±25um/500mm
○ 高速運動3m/s-5m/s 高加速度≥2G帶載能力:6-120kg
○ 標準產品可達4M,可非標定制長度行程單軸多動子運動
○ 組合XY復合運動系統
應用領域
○ 半導體、攝像頭模組、光學器件
○ 激光打標、切割、焊接
○ 非標自動化:光電LCM、鋰電光伏
○ PCB\FPC制程應用
○ 汽車、光伏、大面板搬運
技術參數
配置 | 單位 | 型號電機 | |
電機參數 | / | XBL40075F112 | XBL40075F208 |
峰值推力 | N | 700 | 900 |
持續推力 | N | 270 | 400 |
峰值電流 | Arms | 7 | 15 |
持續電流 | Arms | 4 | 5.5 |
電機力常數 | N/Arms±10% | 69.9 | 72 |
反向電動勢 | V/m/s±10% | 56.9 | 58.6 |
重量 | kg | 1.3 | 2.4 |
磁極距 | mm | 24 |
性能參數 | |||
重復精度 | 磁柵:±5μm 光柵:±3μm | ||
定位精度 | ±25μm/500mm | ||
直線度 | ±10μm/300mm | ||
空載 | / | 行程300mm,停頓時間0.2S,加速度6G,速度4m/s | 行程300mm,停頓時間0.2S,加速度10G,速度4m/s |
負載 | 加速度1G、速度1m/s、停頓時間0.2S、有效運行1000mm行程下: | ||
水平安裝: | 負載≤23kg;最高運行限速2m/s | 負載≤35kg;最高運行限速2m/s | |
側掛安裝: | 負載≤19kg;最高運行限速2m/s | 負載≤29kg;最高運行限速2m/s | |
安裝方式 | 水平安裝/側掛安裝(底座側面為模組基準) | ||
模組重量 | 總長1000mm | 18.4kg | 20.4kg |
底座每增加48mm行程,重量增加0.74kg |
機械規格 | |||
模組底座 | / | S | L |
最小長度 | 280 | 370 | |
增長單位 | 48mm | ||
重量 | 15.3kg/m | ||
最大長度 | 4000mm(6000mm可定制) | ||
滑臺 | 長度 | 128mm | 218mm |
重量 | 3.1kg | 5.1kg |
配置信息 | |
導軌 | 標配:外嵌式雙導軌,上銀EGH15CA;其他需求可選配 |
編碼器 | 標配增量式:分辯率1.0μm 國產(星宇)磁柵 ;分辯率0.5μm 國產榕樹光柵;其他需求可選配 |
傳感器 | 標配:國產光電開關(外置);其他需求可選配 |
電纜線 | 標配:500mm(折彎半徑20mm);其他需求可選配 |
驅動器 | 標配:高創;其他需求可選配 |
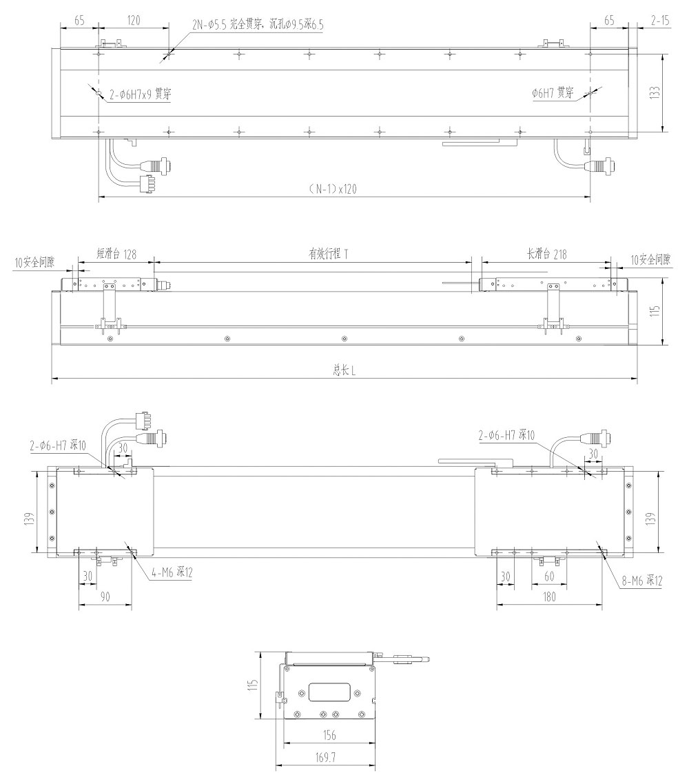
結構尺寸



模組尺寸 | XBM150A,XBM150B,XBM150C | ||||||||||||||||||||
有效行程 | 100 | 148 | 244 | 340 | 436 | 532 | 628 | 724 | 820 | 916 | 1012 | 1108 | 1204 | 1300 | 1396 | 1492 | 1588 | 1684 | 1780 | 1876 | 1972 |
總長度 | 270 | 318 | 414 | 510 | 606 | 702 | 798 | 894 | 990 | 1086 | 1182 | 1278 | 1374 | 1470 | 1566 | 1662 | 1758 | 1854 | 1950 | 2046 | 2142 |
模組重量-S | 7.5 | 8.2 | 9.6 | 11 | 12.4 | 13.8 | 15.2 | 16.6 | 18.0 | 19.4 | 20.8 | 22.2 | 23.6 | 25 | 26.4 | 27.8 | 29.2 | 30.6 | 32.0 | 33.4 | 34.8 |
模組重量-L | 9.5 | 10.2 | 11.6 | 13 | 14.4 | 15.8 | 17.2 | 18.6 | 20.0 | 21.4 | 22.8 | 24.2 | 25.6 | 27 | 28.4 | 29.8 | 31.2 | 32.6 | 34.0 | 35.4 | 36.8 |
模組尺寸 | XBM150A,XBM150B,XBM150C | ||||||||||||||||||||
有效行程 | 2068 | 2164 | 2260 | 2356 | 2452 | 2548 | 2644 | 2740 | 2836 | 2932 | 3028 | 3124 | 3220 | 3316 | 3412 | 3508 | 3604 | 3700 | 3796 | 3892 | 3988 |
總長度 | 2238 | 2334 | 2430 | 2526 | 2622 | 2718 | 2814 | 2910 | 3006 | 3102 | 3198 | 3294 | 3390 | 3486 | 3582 | 3678 | 3774 | 3870 | 3966 | 4062 | 4158 |
模組重量-S | 36.1 | 37.5 | 38.9 | 40.3 | 41.7 | 43.1 | 44.5 | 45.9 | 47.3 | 48.7 | 50.1 | 51.5 | 52.9 | 54.3 | 55.7 | 57.1 | 58.5 | 59.9 | 61.3 | 62.7 | 64.1 |
模組重量-L | 38.2 | 39.6 | 41 | 42.4 | 43.8 | 45.2 | 46.6 | 48.0 | 49.4 | 50.8 | 52.2 | 53.6 | 55 | 56.4 | 57.8 | 59.2 | 60.6 | 62.0 | 63.4 | 64.8 | 66.2 |
型號說明

公司簡介
制造能力
行業應用
合作伙伴
服務網絡